CAPANNONE 600 MQ CON AREA CORTILIVA IN AFFITTO A FORMIGINE

Formigine (Modena)

Rif: AF49
Condividi Linkedin Whatsapp Stampa
€ 2.500
Affitto
Capannone industriale
680 Mq
1 vano
Classe energetica Non indicata
Rif: AF49

Agente di riferimento da contattare: Giulio 3466230382.

AFFITASI CAPANNONE CON AMPIA AREA CORTILIVA IN ZONA QUATTRO PASSI A FORMIGINE A Eu. 2500,00 AL MESE.
LIBERO DA GENNAIO 2026.


Rif. Annuncio: AF49

Dettaglio immobile

Contratto Affitto
Rif AF49
Prezzo € 2.500
Provincia Modena
Comune Formigine
Indirizzo Via Quattro Passi
Superficie 680 mq
Vani 1
Classe energetica Non indicata
Riscaldamento inesistente
Condizioni ottime condizioni
Ascensore no

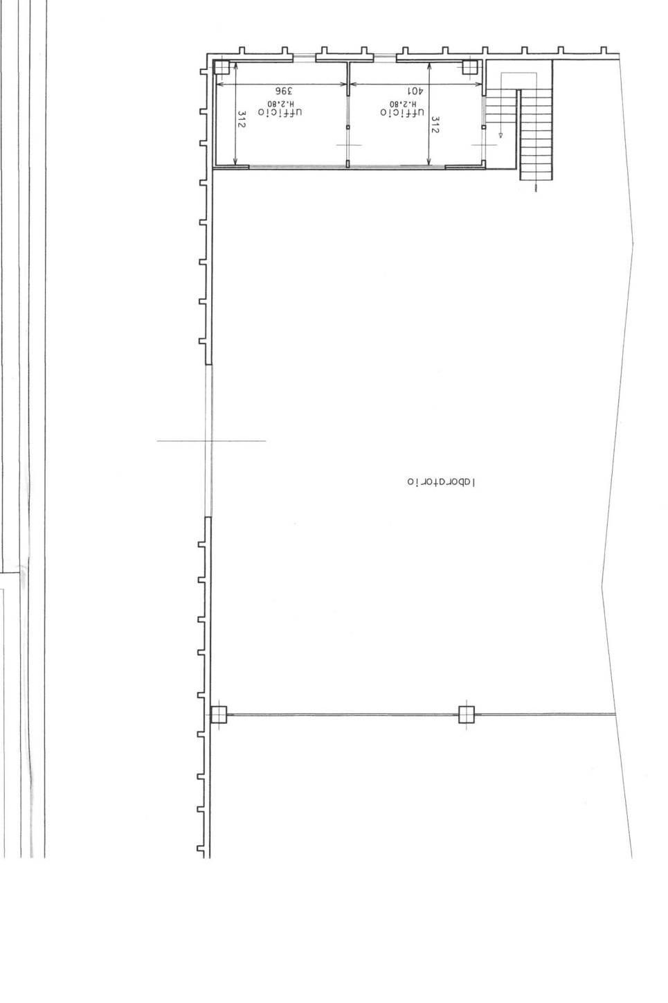
Consistenze

Descrizione Superficie Sup. comm.
Principali
Capannone - piano terra 600 Mq 600 Mqc
Esterno - piano terra 800 Mq 80 Mqc
Totale 680 Mqc

Planimetrie

Richiedi maggiori informazioni

Autorizzazione al trattamento dei dati personali+
Dichiaro di aver letto l'informativa sulla privacy ed accetto le condizioni d'utilizzo del servizio.
Riempi il campo con il codice riportato nell'immagine*
Codice Captcha
Chiamaci Contattaci